Terreno Urbano com 581 m2 projeto de Arquitetura Aprovado na Urbanização Quinta da Cegonha em Santo Estevão

92 000€

  • Usable: 581m2
  • Floor: 581m2
  • C.E.: A+
  • Ref: 55921-MCCT61817

Location

Santarém, Benavente, Santo Estevão, Centro

Description

Terreno Urbano com 581 m2 projeto de Arquitetura Aprovado na Urbanização Quinta da Cegonha em Santo Estevão, Lote nº 26.

Venha conhecer a pacata vila ribatejana e receba um ambiente que respira bom gosto, qualidade e tranquilidade, local certo e ideal para construir a sua casa de sonho, porque a sua Família merece.

Acessos facilitados, a 36 km do Montijo e Ponte Vasco da Gama, 60 Km do Aeroporto e da Grande Lisboa e a 65 km de Santarém.

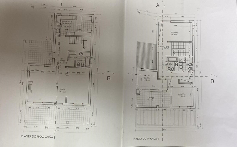
Lote com 453 m2, para construção de Moradia com 2 pisos, estando aprovado. Moradia Modelo A,
Moradia Modelo E e Moradia Modelo C.

Modelo A
- T3 com 188 m2
- T 4 com 216 m2

Modelo E
- T2 com 185 m2 área útil + 30 m2 área dependente
- T2 com 176 m2 área útil + 30 m2 área dependente
- T3 com 198 m2 área útil + 30 m2 área dependente

Modelo C
- T2 com 171 m2
- T3 com 200 m2
- T4 com 225 m2

Grande oportunidade de negócio..

Antecipe-se a outros possíveis interessados!..

Agende já a sua visita.

Através da nossa equipa de especialistas intermediários de crédito autorizados pelo BP 0006202, acompanhamos o processo de financiamento de início ao fim!

Divisions

Blueprints

Floor name: House Floor 0

Division Area Note
Land